Edward Samaniego
Menu
Skip to content
Design
Visual Studies
Education
Library
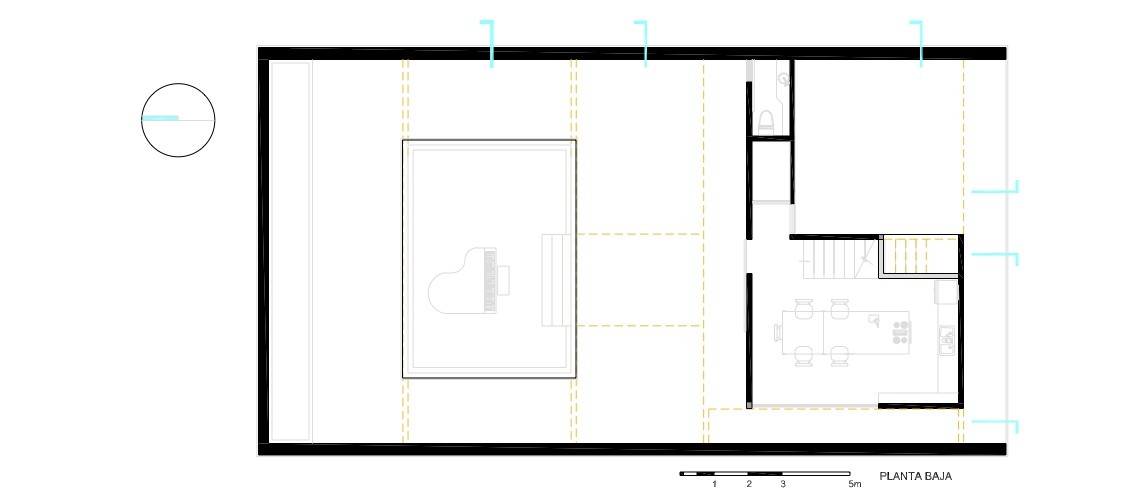
ground-floor
Leave a comment
x
Δ
Privacy & Cookies: This site uses cookies. By continuing to use this website, you agree to their use.
To find out more, including how to control cookies, see here:
Cookie Policy
Comment
Subscribe
Subscribed
Edward Samaniego
Sign me up
Already have a WordPress.com account?
Log in now.
Edward Samaniego
Subscribe
Subscribed
Sign up
Log in
Copy shortlink
Report this content
View post in Reader
Manage subscriptions
Collapse this bar